
MIL-DTL-22606D(SH)
RXX
R O-Ring Seal
W Seal Welded
"U"
"W"
Size
Nominal
"X"
"Z"
"Y" threads
diameter
diameter
Remarks
identifier
pipe size
diameter
+0.006
-0.010
-0.015
5
13/16 - 12 UN-3A
1
¼
0.916
1.187
1.075
/16
7
1 -12 UN-3A
0.916
1.375
1.262
2
/16
3
½
½
1¾ - 12 UN-3A
0.916
1.750
1.637
13
1¾ - 12 UN-3A
0.916
1.750
1.637
special
3S
½
/16
4
¾
2 - 12 UN-3A
0.916
2.000
1.887
13
25/16 -12 UN-3A
5
1
1.041
1.750
2.200
/16
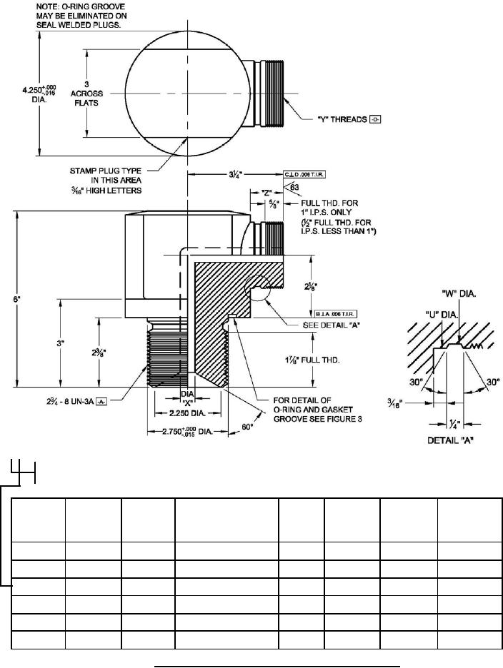
FIGURE 4. Type R inlet/drain plug for o-ring and welded assemblies.
21
For Parts Inquires submit RFQ to Parts Hangar, Inc.
© Copyright 2015 Integrated Publishing, Inc.
A Service Disabled Veteran Owned Small Business