
MIL-DTL-22606D(SH)
SXX
R O-Ring Seal
W Seal Welded
Size
Nominal pipe
"X"
"Y"
Remarks
identifier
size
diameter
threads
0
Solid
--
--
End Closure Plug, No Boss
5
13/16 - 12 UN-3A
Drain Plug
1
¼
/16
3
7
15/16 - 12 UN-3A
Inlet and Outlet Plug
2
/8
/16
3
½
½
1¾ - 12 UN-3A
Inlet and Outlet Plug
13
Special
3S
½
1¾ - 12 UN-3A
/16
5
Inlet and Outlet Plug
4
¾
2 - 12 UN-3A
/8
13
25/16 - 12 UN-3A
Inlet and Outlet Plug
5
1
/16
17/8
Inlet and Outlet Plug
6
2
4½ - 12UN-2A
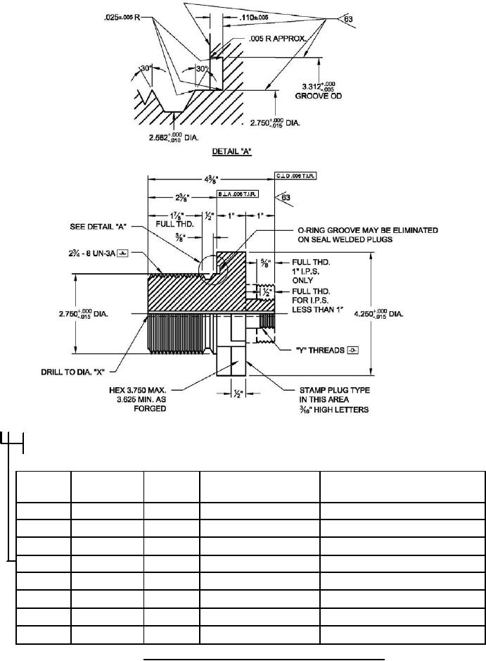
FIGURE 3. Type S inlet/drain plug for o-ring and welded assemblies.
20
For Parts Inquires submit RFQ to Parts Hangar, Inc.
© Copyright 2015 Integrated Publishing, Inc.
A Service Disabled Veteran Owned Small Business