
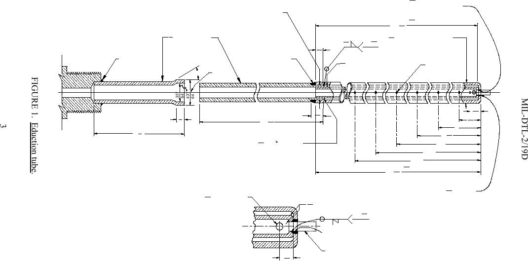
1"
Dia.
Drill thru,
8
1"
Countersink 120° to
4
+.000
Dia. to be
within -.001
of
1"
the Minimum I.D of
+
45" 16
Tubing
28
64 - 0
1"
5"
O.D. X #18(.049) Stubs
Standard I.P.S.
1
1"
4
8
B
- 16
Guage Hard Drawn
Red Brass Tubing
16
1"
4-F
Copper Tubing
4
Silver Solder
Silver Solder
3"
O.D. X #20 (.035) Stubs
#55 (.0520)
8
Drill - 7 Holes
Guage Hard Drawn
Approx.
30°
Copper Tubing
3"
3"
16
1"
1"
8
1"
20
4
2
2
1"
14
3"
3"
2
2
4
4
1
X 45 Chamfer
6"
64
13"
28"
+ 1"
3"
16
28
4
-0
3"
Dia.
Hole
16
11"
Drill - 2 Holes
64
3"
R
64
1
B - 16
2-F
60°
Silver Solder
45S78
15"
Cut off flush with end of
64
tube after Silver Solder